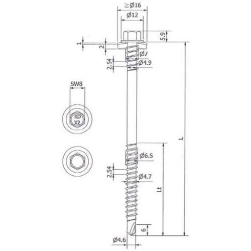
Beschrijving
Bevestigingschroef verzinkt voor bevestiging van dakpanprofielplaten, damwandprofielplaten (dak) en zetwerk, zeskante kop aansluiting 5/16” en aangeperste ring, boorpunt #1
Staal verzinkt 20mu en kleurcoating met 14 mm ALU/EPDM ring.
Maat 4,8 x 35 mm








